ЖК "ВОЛЖСКАЯ ТРОЙКА"

Планировочные решения

(Новочебоксарск, Речной бульвар)

Идеальный вариант однокомнатной квартиры с просторной кухней, прихожей и жилой комнатой.

ЖК Волжская тройка планировка однокомнатной квартиры
Компактная однокомнатная квартира - хороший ценовой вариант для небольшой молодой и немолодой семьи, для студентов любого возраста, желающих жить вк комфортном месте.

ЖК Волжская тройка планировка однокомнатной квартиры

В позиции 5 представлены ПЯТЬ различных планировочных решений двухкомнатных квартир по вашим предпочтениям

ЖК Волжская тройка планировка двухкомнатной квартиры
Каждая планировка продумана так, что большая жилая комната, имеющая 2 окна, легко позволит вам по вашему желанию и фантазии превратить её в трехкомнатную. Или возможно вы захотите сделать шикарную кухню-гостинную и две жилых комнаты. Всё в ваших руках!
ЖК Волжская тройка планировка двухкомнатной квартиры
ЖК Волжская тройка планировка двухкомнатной квартиры
ЖК Волжская тройка планировка двухкомнатной квартиры
ЖК Волжская тройка планировка двухкомнатной квартиры
ЖК Волжская тройка планировка однокомнатной квартиры
однокомнатные квартиры с панорамным видом на реку Волга.

1А, 1Б, 1В (балкон вправо)

ЖК Волжская тройка планировка однокомнатной квартиры
ЖК Волжская тройка планировка однокомнатной квартиры
однокомнатные квартиры с видом на город, двор и детскую площадку.

1В (первый этаж), 1В, 1Г

ЖК Волжская тройка планировка однокомнатной квартиры
ЖК Волжская тройка планировка однокомнатной квартиры
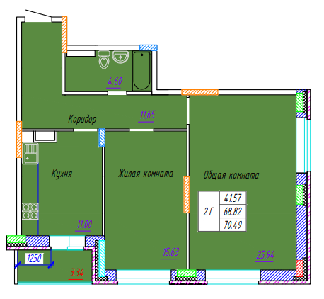
двухкомнатные квартиры с панорамным видом на реку Волга.

2А, 2Б

ЖК Волжская тройка планировка однокомнатной квартиры
ЖК Волжская тройка планировка однокомнатной квартиры
двухкомнатная квартира с видом на город, двор и детскую площадку

2В, 2Г

ЖК Волжская тройка планировка однокомнатной квартиры
трехкомнатная квартира с видом на город, двор и детскую площадку

ЖК Волжская тройка планировка однокомнатной квартиры
ЖК Волжская тройка планировка однокомнатной квартиры
ЖК Волжская тройка планировка однокомнатной квартиры
однокомнатные квартиры с панорамным видом на реку Волга (выше 9 этажа).

1Б, 1В

ЖК Волжская тройка планировка однокомнатной квартиры
ЖК Волжская тройка планировка однокомнатной квартиры
однокомнатные квартиры с видом на город, двор и детскую площадку.

1В, 1Г (первый этаж), 1Б, 1В (2-8 этаж), 1А, 1Г, 1Д

ЖК Волжская тройка планировка однокомнатной квартиры
ЖК Волжская тройка планировка однокомнатной квартиры
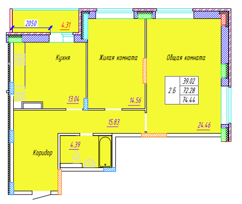
двухкомнатные квартиры с панорамным видом на реку Волга.

2А, 2Б

ЖК Волжская тройка планировка однокомнатной квартиры
ЖК Волжская тройка планировка однокомнатной квартиры
двухкомнатная квартира с видом на город, двор и детскую площадку

2В, 2Г

ЖК Волжская тройка планировка однокомнатной квартиры
трехкомнатная квартира с видом на город, двор и детскую площадку
1 этаж
2-8 этаж
9-16 этаж

Общий вид

ЖК Волжская тройка планировка однокомнатной квартиры
ЖК Волжская тройка планировка однокомнатной квартиры
ЖК Волжская тройка планировка однокомнатной квартиры
ЖК Волжская тройка планировка однокомнатной квартиры
ЖК Волжская тройка планировка однокомнатной квартиры
ЖК Волжская тройка планировка однокомнатной квартиры
ЖК Волжская тройка планировка однокомнатной квартиры
ЖК Волжская тройка планировка однокомнатной квартиры
ЖК Волжская тройка планировка однокомнатной квартиры
ЖК Волжская тройка планировка однокомнатной квартиры
ЖК Волжская тройка планировка однокомнатной квартиры

Планы этажей

ЖК Волжская тройка план первого этажа в позиции 5

1 этаж

Новочебоксарск, Речной бульвар, позиция 5
ЖК Волжская тройка план типового этажа в позиции 5

Новочебоксарск, Речной бульвар, позиция 5

Типовой этаж

Новочебоксарск, Речной бульвар, позиция 7
ЖК Волжская тройка план типового этажа в позиции 5

Типовой этаж

ЖК Волжская тройка план первого этажа в позиции 5

1 этаж

Новочебоксарск, Речной бульвар, позиция 7

Планы этажей